Client : Privé
Lieu: Nice
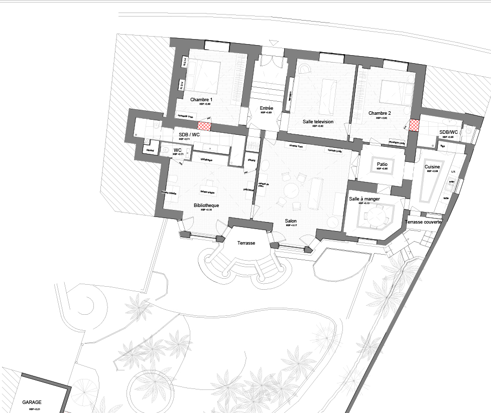
Surface : 210 m² plus jardin
État: Achevé






























La rénovation a voulu récupérer et mettre en avant l’identité Belle Epoque du lieu.
Cet appartement allie fonctionnalité et esthétique. Il est équipé de tout le confort moderne, avec un
système de réseaux sous les planchers. Ce système nous a permis de conserver les magnifiques
moulures d’origine aux plafonds et aux murs.
La distribution des pièces opte pour un vaste espace de vie ultra-lumineux donnant sur le jardin.
L’architecture exploite les volumes, les matériaux et les couleurs pour créer une atmosphère sereine
et sublimer l’ensemble.
Le Souplex au rez-de-jardin a été totalement transformé en accueillant un appartement d’appoint.
Vous devez être connecté pour poster un commentaire.